Your privacy is important to us. This website uses cookies to enhance user experience and to analyze performance and traffic on our website. By using this website, you acknowledge the real-time collection, storage, use, and disclosure of information on your device or provided by you (such as mouse movements and clicks). We may disclose such information about your use of our website with our social media, advertising and analytics partners. Visit our Privacy Policy and California Privacy Disclosure for more information on such sharing.

Log In

Our Brands

Helpful Tools

Search

Explore Catalina Legacy Edition

Home > Catalina > Catalina Legacy Edition

Explore Catalina Legacy Edition

Catalina Legacy Edition RVs

Explore Catalina Legacy Edition

Catalina Legacy Edition Travel Trailers

The Coachmen Catalina is a trusted name in the RV industry, known for delivering a versatile lineup of dependable, well-built, and affordable travel trailers. At the heart of this reputation is the Catalina Legacy Edition, a travel trailer series designed to support a wide range of camping lifestyles, from casual weekend trips to extended stays on the road.

Built to meet the needs of both new RV owners and seasoned travelers, the Catalina Legacy Edition offers multiple floorplans and configurations that accommodate a variety of budgets and preferences. Each model combines practical design with modern style, delivering exceptional value without compromising on comfort or quality. As one of the most competitively priced travel trailers on the market, the Catalina Legacy Edition stands out for its combination of Coachmen craftsmanship, thoughtful features, and family-friendly amenities. Whether you're looking to explore national parks, campgrounds, or remote destinations, this travel trailer is equipped to make every journey comfortable and memorable.

Discover why so many RVers choose the Coachmen Catalina Legacy Edition. Quality, value, style, and comfort come together to create a travel experience you can rely on.

* Due to the current environment our features and options are subject to change due to material availability

Catalina Legacy Edition Exterior Image
Follow Catalina Legacy Edition on Social Media:

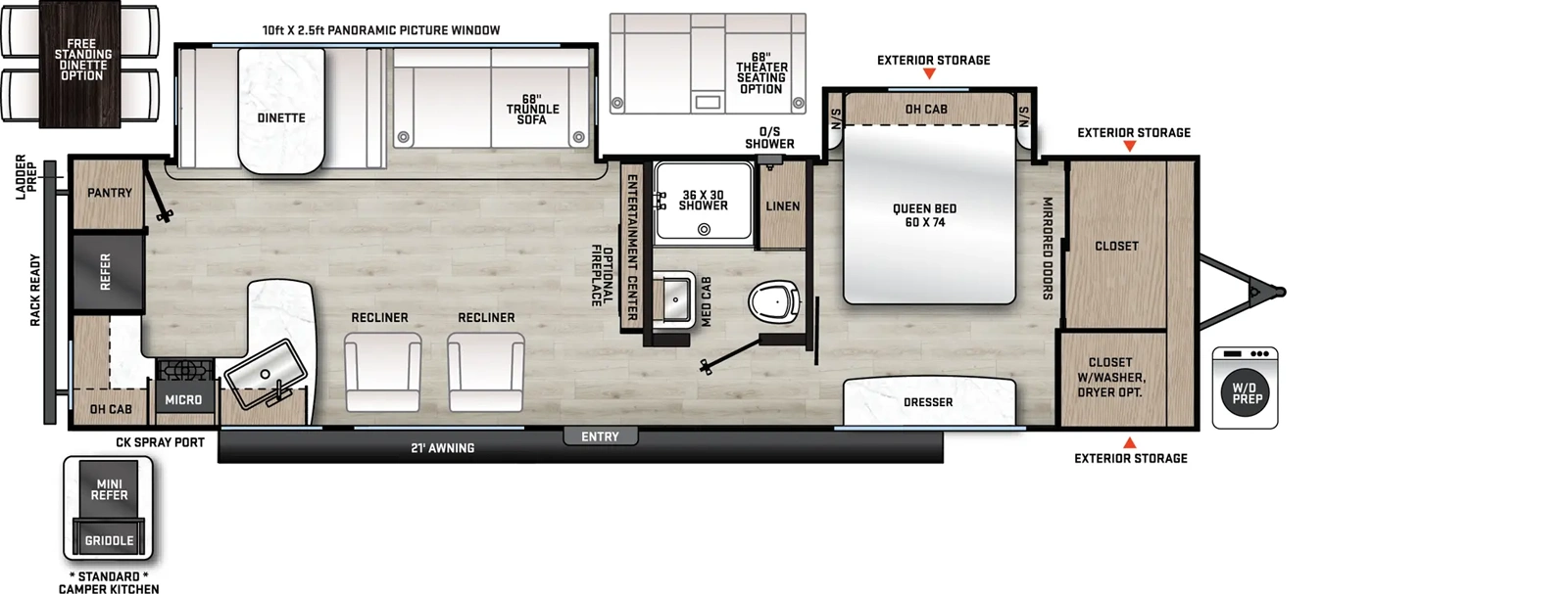
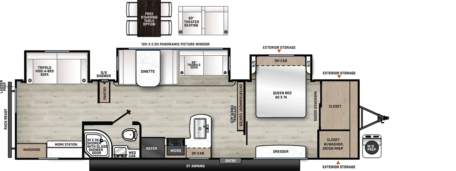
2026 Catalina Legacy Edition Floorplans

Travel Trailers

2026 Catalina Legacy Edition Features & Options

    • Panoramic 10 Ft. Slideout Window
    • Front Radius Lighting
    • MORryde StepAbove Solid Steps
    • Safe-T-Rail Door Assist on Main Entry Door
    • Electric Awning w/Multicolor LED Strip & Remote
    • Electric Tongue Jack
    • G20 Tinted Privacy Windows
    • Hot/Cold Outside Utility Shower w/ Hands Free Holder
    • Black Tank Flush
    • Battery Disconnect Switch
    • Siphon 360 Holding Tank Roof Vent
    • (2) 20 lb. LP Tanks
    • Black ABS LP Bottle Cover
    • LP Quick Connect
    • Flush Mount Baggage Doors w/Radius Corners
    • Diamond Plate Rock Guard
    • Stabilizer Jacks
    • Premium JBL Exterior Speakers
    • Rear Floor to Ceiling Landscape Picture Windows (283EPIC)
    • Friction Hinged Black Glass Entry Door with Window
    • Exterior 110V G.F.C.I Protected Receptacle
    • Exterior RG-6 Coax Cabling and Satellite Prep
    • Exterior TV Hookup
    • Rain Gutters with Drip Spouts
    • Rear View Camera Prep
    • Full Size Exterior Camp Kitchen (323BHDSCK, 343BHTS)
    • Exterior Camp Kitchen + Storage (263BHSCK, 273DBHCK, 293QBCK, 293TQBS)
    • Exterior Camp Kitchen (243RBS, 263FKDS, 283RKS, 303RKDS)
    • Bottle Openers (Exterior Camp Kitchens)
    • Pets - "Leash Link" Quick Hookup D-Ring
    • Universal Solar Prep w/Roof & Chg. Contoller Connections & Wiring
    • Rear Ladder Prep
    • Front Landscape Picture Window (263FKDS)
    • Panoramic 10 Ft. Slideout Window
    • Solid Surface Kitchen Countertops, Seamless Thermofoil Countertops Outside of Kitchen Area
    • Porcelain Toilet
    • GE Glass Stainless 10.7 Cu. Ft. 12V Refrigerator (N/A 323MAZE)
    • GE Residential Style French Door 16.4 Cu. Ft. (323MAZE)
    • GE Stainless 3-Burner Gas Range with Metal Back-Lit Knobs
    • Range Hood
    • GE Stainless Microwave W/Glass Turn Table
    • Premium Audio JBL Aura Cube Multi-Zone Function Media Center
    • Premium JBL Interior Speakers
    • SLS (Sit-Lounge-Sleep) Sofa with Interior Storage
    • Deep Basin Farm Style Sink
    • Residential-Style Kitchen Faucet w/Pull Down Sprayer
    • Stainless Steel Drying Rack
    • High Pressure Glass Rinser
    • Washer/Dryer Prep (243RBS, 303RKDS, 313RLTS, 323BHDS, 323MAZE, 343BHTS)
    • Paper Towel Holder
    • All-In-One Control Panel with Dimmer Switch
    • Brick Style Backsplash
    • Congoleum Woodplank Linoleum Flooring
    • 4000 Lumin LED Interior Touch Lighting
    • Bunkroom Jackknife Sofa (293QBCK, 323BHDS, 343BHTS)
    • Hard Valance Window Treatments
    • Pedestal Thermofoil Dinette Table
    • Under Bench Dinette Storage (Per Floorplan)
    • Easy Access Booth Dinette Storage Doors
    • 12V 14" Living Room Power Vent Fan
    • 12V 14" Bathroom Power Vent Fan
    • ABS Tub/Shower Surround w/Shelves
    • Shower/Coat Hooks
    • Skylight Above Tub/Shower
    • Glass Step-In Shower w/ABS Surround (Per Floorplan)
    • Medicine Wall Cabinet with Mirror
    • Bedroom Surface Mounts USB Ports (Each Night Stand)
    • Kitchen USB's & Outlets
    • USB Surface Mounts Near Bunk Beds
    • Master Bed Directional Reading Lights (303RKDS, 313RLTS, 323MAZE, 343BHTS)
    • Solid Master Bedroom Door(s) (Per Floorplan)
    • Solid Bunk Room Door (Per Floor Plan)
    • Full Length Night Stands with Shelves (N/A Bed Slide-Outs)”
    • Mirrored Wardrobes in Master Bedroom
    • Master Bedroom Overhead Cabinets
    • Underbed Storage w/Separation from Outside Front Storage
    • Designer Fitted Master Bed Sheet
    • Full Lino in Slide-Outs and Bedrooms (Carpetless)
    • GE 60K BTU Tankless On Demand Water Heater
    • GE 13,500 BTU Fully Ducted A/C with Heat Pump
    • 81" Interior Height (6' 9")
    • Undermount Spare Tire
    • 35,000 BTU Auto-Ignition Furnace w/Wall Thermostat (N/A 283RKS)
    • 30,000 BTU Auto-Ignition Furnace w/Wall Thermostat (283RKS Only)
    • Upgraded Aluminum Wheels
    • Magnetic Hands Free Baggage Door Latches
    • Cambered Structural Steel I-Beam Frame
    • Norco Electromagnetic, Powder Coated Chassis
    • Full Length Frame Outriggers
    • 5/8" Tongue & Groove StableDeck Flooring
    • 2"x3" Floor Joists on Approximately 12" Centers
    • 5" Floor To Frame Steel Lag Bolts
    • Enclosed, Fully Sealed Corrugated Underbelly
    • Darco Subfloor Protective Wrap/Enclosure
    • Seamless Alpha Roof Membrane with Lifetime Warranty
    • Cross-Braced Engineered Roof Trusses w/5" Crown
    • 3/8" Fully Decked Walk-On Roof
    • Screwed Cabinet Construction w/Pocket Bored Lumber Core Stiles
    • 5/8" Plywood Under Bed & Dinette Base
    • Easy-Trac Rack and Pinion Through Frame Main Slide-Out(s)
    • R-7 Fiberglass Insulation Throughout
    • Water Heater By-Pass Winterization Kit
    • 12V Demand Water Pump
    • Premium Exterior Graphics Package
    • Upgraded Front Graphics Design
    • Platinum .024" Aluminum Exterior w/.030 Skirt Metal
    • Smooth HD Aluminum Radius Front
    • Polished HD Aluminum Fender Skirts
    • EZ Lube Axles w/Leaf Spring Suspension
    • Self Adjusting Brakes
    • Roto-Cast Holding Tanks
    • Bumper w/ Drain Hose Carrier and End Caps
    • Residential-Style In-Floor Ducted Heat
    • Magnadyne Antenna
    • 30 Amp Electric Service w/ 100v 45-Amp Power Covt.
    • 50 Amp Electric Service (Standard on 303RKDS, 313RLTS, 323BHDS, 323MAZE, 343BHTS)
    • Smoke Alarm
    • LP/CO Gas Detector
    • Fire Extinguisher
    • Fire Escape Windows
    • Entrance Door Window
    • Dead-Bolt Lock on Entry Door
    • Specialized Dispatch Services (1 YR Roadside Assistance)
    • BAL 5.3 Automatic Leveling System
    • GE 15,000 BTU Ducted A/C IPO 13.5 A/C with Heat Pump
    • 50 Amp Service w/ 2nd 13.5 A/C
    • 50 Amp Service w/2nd A/C Prep
    • 50 Amp Service with (3) Non-Ducted 18K BTU Furrion High Efficiency A/Cs with Heat Pumps (N/A 243RBS, 263BHS, 263FKDS, 283RKS)
    • Peak Performance Solar Package - 30A Controller w/ 200W Panel
    • Free Standing Table w/4 Chairs (N/A U-Dinette Floorplans)
    • Power Theater Seating with Reclining Features (Standard on 313RLTS) (N/A 323MAZE)
    • Fireplace with Electric Heater in the Living Room (N/A 283EPIC)
    • 200 LB. Flip-Down Cargo Rack (N/A 283EPIC)
    • 7 Cu. Ft. LP Gas/Electric RV Refrigerator w/Reversable Door Inserts
    • 2nd Queen Bed IPO Bunkroom & Camp Kitchen (343BHTS Only)
    • Den Room IPO Bunkroom & Camp Kitchen (343BHTS Only)
    • Stackable Washer/Dryer (303RKDS, 313RLTS, 323MAZE, 343BHTS)
    • CSA Standards

Catalina Legacy Edition Update Alerts

Please sign up below if you would like to receive notifications when we make updates to this brand. Or, if you only want updates on a particular floorplan, you can select to be updated on each one individually.